Aplikacja Click&Boat
Udostępnij
Dodaj do ulubionych
Dodaj do ulubionych
Udostępnij
Dodaj do ulubionych
Dodaj do ulubionych
View boat design plan Zobacz zdjęcia (+6)

Czarter jachtów w Saint-Jean-de-Losne · Jeanneau Eau Vive — Sans Permis (agrément) (1994)

Bez sternika
Profesjonalista
Saint Jean De Losne
Udostępnij
Dodaj do ulubionych
Dodaj do ulubionych
łódź motorowa należący do Dominique
Liczba osób: 6
 · Liczba kabin: 2
 · Liczba koi: 6
 · 1 łazienka
Dominique
Bez sternika
Będziesz kapitanem łodzi, dlatego wymagany jest patent żeglarski.

Opis łódź motorowaod Dominique

Przetłumacz automatycznie ten opis na język Polski

Łódź Motorowa Jeanneau Eau Vive Sans Permis (agrément) 30km

Wejdź na pokład już teraz i daj się porwać tej nawiedzającej przygodzie na wodzie. Wygodna łódź rzeczna, idealna dla 4 osób, do 6 osób. 2 kabiny z podwójnym łóżkiem, schowkiem, małym zlewem. Kuchnia z 2 palnikami gazowymi i 1 piekarnikiem, małą lodówką, naczyniami dla 6 osób. Łazienka z toaletą, prysznicem, ciepłą wodą. Ładny plac z szyberdachem. Wygodny taras z małym grillem. 2 rowery zapewnione. Pościel i ręczniki nie zapewnione. Numer licencji AA21-001, więc jazda bez prawa jazdy. Inicjacja 2 godziny. 4 możliwe kierunki, na Saonie, na północ w kierunku Gray lub w kierunku Chalon/Saone. Na wschód, Canal du Rhône do Renu, w kierunku Dole, a następnie Besançon. Na zachód, kanał Burgundzki w kierunku Dijon i dolina Ouche. Wyrusz na ekscytującą przygodę na pokładzie Jeanneau Eau Vive z Saint-Jean-de-Losne. Już po wejściu na pokład Jeanneau Eau Vive, natychmiast zostaniesz uwiedziony elegancją tej łodzi. Dzięki nowoczesnemu wzornictwu i czystym liniom jest ona zarówno estetyczna, jak i funkcjonalna, oferując płynną i wygodną nawigację. Wypłynięcie z Saint-Jean-de-Losne oznacza początek żeglarskiej przygody wzdłuż pięknej rzeki Saony. W miarę jak będziesz się poruszać po spokojnych wodach, będziesz otoczony malowniczymi krajobrazami. Zielone brzegi, winnice i małe typowe wioski przesuwają się przed Twoimi oczami ze zdumieniem. Już po wejściu na pokład Jeanneau Eau Vive, natychmiast zostaniesz uwiedziony elegancją tej łodzi. Dzięki nowoczesnemu wzornictwu i czystym liniom jest ona zarówno estetyczna, jak i funkcjonalna, oferując płynną i wygodną nawigację. Wypłynięcie z Saint-Jean-de-Losne oznacza początek żeglarskiej przygody wzdłuż pięknej rzeki Saony. Płynąc spokojnymi wodami, będziesz otoczony malowniczymi krajobrazami. Zielone brzegi, winnice i małe typowe wioski przesuwają się przed Twoimi oczami ze zdumieniem. Możesz wybrać własną trasę i zatrzymać się, gdziekolwiek chcesz. Odkryj urocze miejsca, takie jak Seurre, Verdun-sur-le-Doubs lub Chalon-sur-Saône. Skorzystaj z przystanków, aby odkryć lokalną gastronomię, skosztować pysznych win i zanurzyć się w kulturze regionu. Niezależnie od tego, czy jesteś początkującym, czy doświadczonym żeglarzem, rejs Jeanneau Eau Vive z Saint-Jean-de-Losne to niezapomniane przeżycie. Będziesz cieszyć się swobodą żeglugi, pięknem krajobrazów i urokiem okolicznych wiosek.

Więcej

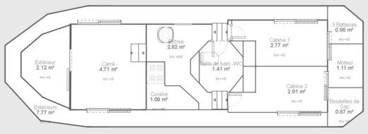
Plan łodzi

Motorboat JEANNEAU EAU VIVE SANS PERMIS (Agrément) boat plan
Liczba osób: 6
Liczba kabin: 2
Liczba koi: 6
1 łazienka

Wyposażenie dostępne na łódź motorowa

Rower
Pościel
Ciepła woda
Gniazdo 220 V
Piekarnik/kuchenka
Lodówka
Drabinka zaburtowa
Gniazdo USB
Dziobowy pokład słoneczny
Rufowy pokład słoneczny
Zobacz pełne wyposażenie (+4)
Zobacz pełne wyposażenie (+9)

Kalendarz

Wskaż daty, żeby wyświetlić cenę

Zobacz tabelę cen
Usuń daty

4.2

 (Liczba komentarzy: 5)

Oceny ogólne

Zgodność jachtu z opisem
rating-stars
Komfort na pokładzie
rating-stars
Poziom utrzymania
rating-stars
Czystość
rating-stars
Przyjęcie i kontakt
rating-stars
Stosunek jakości do ceny
rating-stars

Liczba komentarzy: 5 
?

Opinie są sortowane według oceny (najlepsze na początku)
Przetłumacz
Olivier
Data wynajmu 26.8.2025  ·  Data opinii 30.8.2025
rating-stars
Przetłumaczone z francuski Pokaż oryginał

Dominique i Arthur ciepło nas przyjęli i zapewnili przyjemny rejs po Saonie. Łódź nie jest nowa, ale jest w dobrym stanie i funkcjonalna.

Alexander
Data wynajmu 5.7.2025  ·  Data opinii 8.7.2025
rating-stars
Przetłumaczone z angielski Pokaż oryginał

Cudownie spędziliśmy czas, eksplorując Kanał Burgundzki.

Yvon
Data wynajmu 11.8.2024  ·  Data opinii 13.8.2024
rating-stars
Przetłumaczone z francuski Pokaż oryginał

Dominique jest bardzo miły i udziela dobrych rad. Starzejąca się łódź, ale doskonały stosunek jakości do ceny. Mieliśmy doskonały pobyt na Caly

Olivier
Olivier
Data wynajmu 1.8.2024  ·  Data opinii 6.8.2024
rating-stars
Przetłumaczone z francuski Pokaż oryginał

Świetnie się bawiliśmy na Caly. Arthur, syn Dominique'a, jest przyjacielski. Odkryć.

Anne Sophie
Data wynajmu 8.5.2024  ·  Data opinii 13.5.2024
rating-stars
Przetłumaczone z francuski Pokaż oryginał

Dominique jest bardzo przyjazny i zawsze udziela dobrych rad dotyczących nawigacji, bardzo szybko reaguje na swoje odpowiedzi. Mieliśmy bardzo przyjemny pobyt z rodziną. DZIĘKI

Dominique

Oferowane przez Dominique

Dołączył w maj 2023  ·  Profesjonalny właściciel

4.2

 (Liczba opinii: 10)

Zweryfikowane dane kontaktowe
Języki obce: francuski
Czas reakcji: W ciągu kilku godzin
Wskaźnik odpowiedzi: Większy niż 95%

Lokalizacja

łódź motorowa w lokalizacji: Saint Jean De Losne, Saint-Jean-De-Losne

łódź motorowa w lokalizacji: Saint-Jean-de-Losne

Charakterystyka

Producent: Jeanneau Eau Vive
Model: Sans Permis (Agrément)
Moc silnika: 30KM
Długość: 10.4m
Rok: 1994 (Odnowiony w 2021)
Liczba osób: Liczba osób: 6
Liczba kabin: 2
Liczba koi: 6
Ilość kabin łazienkowych: 1
Zobacz wszystkie funkcje
Zobacz mniej
Cena
Opłata za usługę i podatki
Zniżka 

Warunki

Check-in & Check-out

Godzina odbioru (wynajem jednodniowy): 09:00
Godzina zwrotu (wynajem jednodniowy): 19:00
Godziny odbioru: 09:00
Godziny zwrotu: 18:00

Boat rules

Wysokość kaucji: 4 418 zł
?
Paliwo wliczone w cenę: Nie
Wymagany patent: Tak
Minimalny wiek najemcy: 18 lat

Polityka odstąpienia od umowy i anulowania

Prawo do odstąpienia od tej rezerwacji:
Zasady anulowania
Add your travel dates to see the cancellation policy for this trip.

Wyślij zapytanie do podobnych łodzi

Zamknij

Zamknij
Tabela cen
01 stycznia - 31 grudnia
1 dzień 1 988
2 dni 2 828
3 dni 3 799
4 dni 4 462
5 dni 5 169
6 dni 5 832
1 tydzień 6 450